GOLWEST

Dom murowany Erna 3

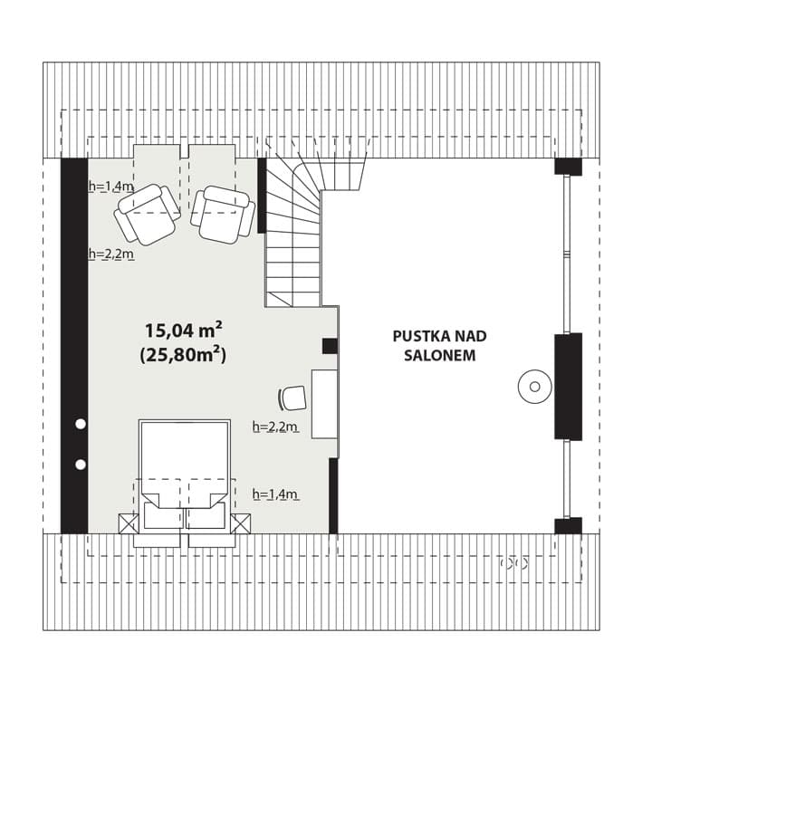
Powierzchnia użytkowa
64,97 m2

Cena projektu
4600 zł

Powierzchnia użytkowa64,97 m²
Powierzchnia zabudowy69,56 m²
Powierzchnia dachu122 m²
Kąt nachylenia dachu35°
Wysokość w kalenicy7,08 m
Wysokość parteru2,56 m
Wysokość piętra2,80 m
Wysokość ścianki kol.0,76 m
Kubatura395 m³
Minimalne wymiary działki15,75 m × 16,95 m
Pokoje (bez salonu)1
Łazienki i toalety1
GarażBrak garażu

Erna 3

Dom murowany całoroczny

Erna 3 to niewielki dom jednorodzinny lub letniskowy. Posiada sypialnię na parterze oraz otwartą część dzienną z antresolą na której jest dodatkowa przestrzeń do dowolnej aranżacji. Dzięki powierzchni zabudowy 69,5 m2, może być budowany na zgłoszenie. Dom posiada duże przeszklenie w ścianie szczytowej a wejście jest przez zadaszony taras z boku domu co pozwala sytuować dom również na działkach z wejściem od południa. Standardowo dom wyposażony jest w pompę ciepła oraz kominek.

Technologia

Dach: dachówka lub blachodachówka
Elewacje: tynk, szalówka
Strop: żelbetowy
Ściany wewnętrzne: murowane
Ściany zewnętrzne: dwuwarstwowe, pustak ceramiczny, docieplony styropianem

Dodatkowe informacje

Projekt dostępny także w wersji drewnianej: Erna 3 drewniana