GOLWEST

Dom Drewniany Erna 2

Powierzchnia użytkowa
85,68 m2

Cena projektu
5100 zł

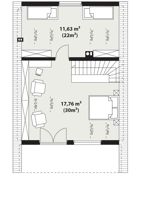
Powierzchnia użytkowa85,68 m²
Powierzchnia zabudowy69,55 m²
Powierzchnia dachu103,3 m²
Kąt nachylenia dachu38°
Wysokość w kalenicy7,15 m
Wysokość parteru2,61 m
Wysokość piętra2,90 m
Wysokość ścianki kol.0,55 m
Kubatura400 m³
Minimalne wymiary działki15,4 m × 20 m
Pokoje (bez salonu)3
Łazienki i toalety1
GarażBrak garażu

Erna 2

Dom drewniany całoroczny

Erna 2 drewniana do niewielki dom jednorodzinny lub letniskowy. Posiada trzy sypialnie oraz otwartą część dzienną. Dzięki powierzchni zabudowy 69,5 m2, może być budowany na zgłoszenie. Jest to „nowoczesna stodoła” z przeszkleniami w ścianie szczytowej. Wejście do domu jest przez taras co pozwala sytuować dom na działkach z wejściem od południa. Standardowo dom wyposażony jest w pompę ciepła oraz kominek.

Technologia

Dach: dachówka lub blachodachówka
Elewacje: szalówka
Strop: belki drewniane
Ściany wewnętrzne: szkielet drewniany
Ściany zewnętrzne: szkielet drewniany

Dodatkowe informacje